Connecting Australians with modular builders, suppliers and trades.

Modular Cabins Toilet & Shower

Contact Seller
1
1
1
$84,000
Area: 24m2
Size: 8x3.4m
Built in Australia

Description

Modular Building with Toilet & Shower 

This quality modular building is ideal for use as a site office, lunchroom, accommodation unit or temporary workspace. Featuring a practical open-plan layout, the unit includes a separate bathroom with shower, toilet and vanity, along with a bright office/living area with large sliding windows for natural light.

Built with durable finishes and ready for immediate use, this unit is a great option for construction sites, rural properties, commercial projects or additional space at home.

Features include:

  • Open-plan office / living area
  • Separate bathroom with shower, toilet and vanity
  • Large sliding window for natural light
  • Durable vinyl flooring
  • Internal lighting and power points
  • Insulated wall and ceilings.
  • Modern exterior finish
  • Ready for transport and installation

Ideal for:

  • Site office
  • Staff amenities
  • Temporary accommodation
  • Farm or rural use
  • Extra workspace or studio

Price for this building $84,000 plus GST

Delivery available Australia-wide at extra cost.

Located Gold Coast, QLD.

For pricing and more information on this or other builds, contact GB Modular today.

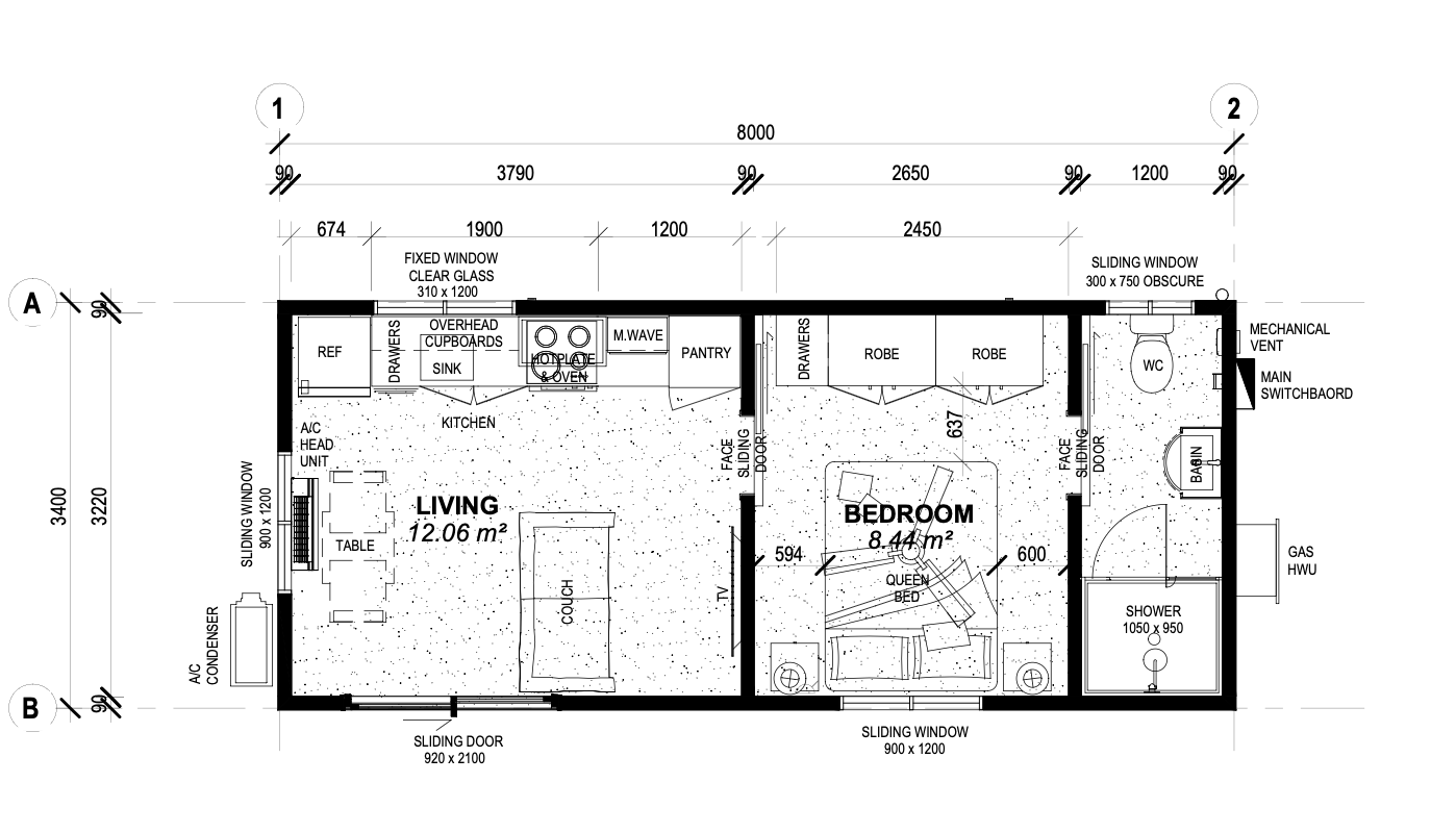
Floor plan

Screenshot 2026 04 22 At 2.29.35 pm

Features & Inclusions

  • Bathroom
  • Kitchen
  • Hot Water System
  • Air Conditioning / Heating System
  • Shower
  • Ceiling Fans
  • Compliance Certificates
  • Structural Warranty
  • Delivery Available (Cost TBA)
  • Built In Australia
Screenshot 2026 04 17 At 12.41.50 pm

Contact the seller

Interested in this listing? Get in touch with the seller using the form below.

"*" indicates required fields

Be the First to Know

Join our community and get early access to the latest listings, build updates, and modular news — no spam, just the good stuff.

"*" indicates required fields