Connecting Australians with modular builders, suppliers and trades.

THE YORKE by Modset

Contact Seller
AUS
3
2
1
Starting from $275,000
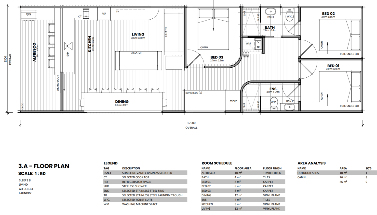
Area: 90m2
Size: 17x5.3m

Description

With 3-bedrooms plus space for bunk beds, ensuite and second bathroom, The Yorke comfortably sleeps 8. It boasts generous sized double-glazed windows, Velux skylight over the kitchen and architectural features such as curved walls, all included as standard. With an abundance of space, The Yorke is an excellent choice for those who like to entertain.

With multiple floor plan variations including a 4-bedroom design, you’re sure to find something to suit your family. All built in our factory located on the NSW/VIC border, and supply available Australia-wide, contact our friendly team today to learn more – sales@modset.com.au

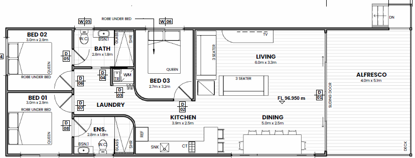
Floor plan

The Yorke Floor Plan
Yorke 2 Floor Plan
Yorke 4 4 Bed Floor Plan

Features & Inclusions

  • Bathroom
  • Kitchen
  • Hot Water System
  • Air Conditioning / Heating System
  • Shower
  • Built-in Storage
  • Double Glazed Windows
  • Ceiling Fans
  • Delivery Available (Cost TBA)
Modset

Contact the seller

Interested in this listing? Get in touch with the seller using the form below.

"*" indicates required fields

Be the First to Know

Join our community and get early access to the latest listings, build updates, and modular news — no spam, just the good stuff.

"*" indicates required fields